In zentraler, dennoch ruhiger Lage von Gießen steht diese außergewöhnlich hochwertige Gewerbeeinheit im Hochparterre eines denkmalgeschützten Altbaus aus dem Jahr 1902 zur Vermietung. Das Gebäude wurde 2021 umfassend kernsaniert und verbindet historischen Charme mit zeitgemäßem Komfort.
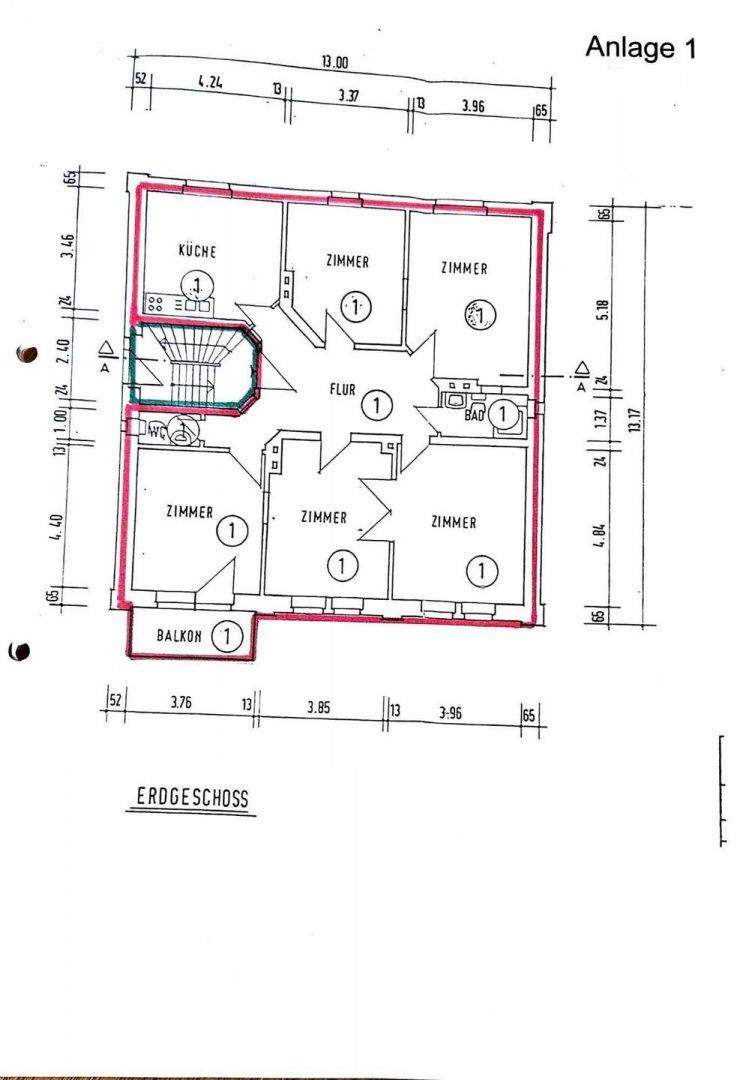
Die Einheit umfasst ca. 130 m² und bietet sechs großzügige, lichtdurchflutete Räume, die sich hervorragend als Büro-, Praxis-, Besprechungs- oder Tagungsräume nutzen lassen. Die beeindruckende Deckenhöhe von ca. 3,20 m, die originalen Holzdielenböden sowie die großen Fenster schaffen eine repräsentative, zugleich angenehme Arbeitsatmosphäre.
Dank der durchdachten Raumaufteilung eignet sich die Fläche ideal für 6-8 Mitarbeitende und richtet sich bewusst an Nutzer mit geringem Publikumsverkehr, da im direkten Umfeld keine Stellplätze zur Verfügung stehen.
Besichtigungen sind ausschließlich nach vorheriger Terminvereinbarung und mit ggf. entsprechendem zeitlichen Vorlauf möglich.
Anfragen bitte ausschließlich über das beauftragte Maklerbüro – eigenständige Besichtigungen vor Ort sind nicht möglich.


















